Civil Part
Engaged in Civil Drawings, our services prioritize detailed plans, ensuring precision in project execution. With a comprehensive scope, our drawings enhance communication, adhere to industry standards, and facilitate seamless collaboration. The importance lies in promoting efficiency, minimizing errors, and contributing to the overall success of diverse civil engineering endeavors.
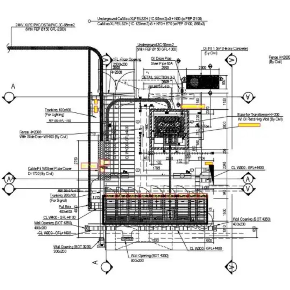
Layout– Plan & Section Drawing
Our service visually maps out spatial arrangements for efficient project communication. With clear plan views and insightful section details, we offer a user-friendly online experience, ensuring seamless understanding of architectural layouts for your projects. Trust us for meticulous and accessible design visualization.
-
- Overall Layout.
- Foundation Layout.
- Cable trench Layout.
- Control building Layout plan and sections.
General Arrangement Drawing
These drawings offer a comprehensive view, showcasing spatial relationships and key details for effective project communication. With a focus on clarity and precision, we ensure that our drawings serve as a valuable guide for construction and design teams.
- Foundation drawing.
- Structural drawing.
- Control building.
Detailed Drawings
Our team specializes in Structural Fabrication Drawings, ensuring precision in component manufacturing. Delve into the intricacies with our Foundation RC Detailed Drawings, providing a comprehensive guide for robust and reliable foundations. Elevate your control infrastructure with our Control Building RC Detailed Drawings, meticulously designed for optimal construction and functionality.
-
- Structural fabrication drawing.
- Foundation RC detailed drawing.
- Control building RC detailed drawing.
Ashwatha Energy proudly designs the best substations.
Our engineers and designers create innovative, efficient substation design solutions that fulfil the highest quality and reliability criteria.


